REF - AM-11500

Alicante, Spain

€595,000

Description

. The villa is located in the quiet residential complex of Alcalalí.. . This residential complex is characterized by tranquility and for being in the Jalón Valley area with excellent connections with the main municipalities of the Marina Alta.. . The...

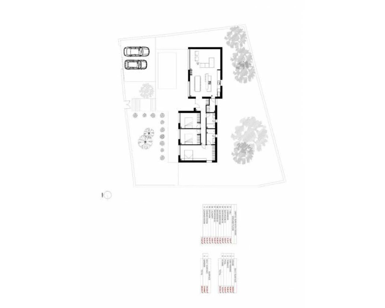
. The villa is located in the quiet residential complex of Alcalalí.. . This residential complex is characterized by tranquility and for being in the Jalón Valley area with excellent connections with the main municipalities of the Marina Alta.. . The house is distributed on one floor and is divided into two parts. On the one hand, there is the sleeping area, where there are 3 double bedrooms and one with an en-suite bathroom and a guest toilet.. . On the other hand, there is the area where there is a kitchenette that opens to the living-dining room space. The kitchen is one of the most important rooms in the house. The top quality ceramic finishes combine perfectly with the modular kitchen proposed according to the plan. The kitchen is connected to the laundry room and is to the outside.. . The living room has large windows to enjoy the views and to access the terrace and pool.. . The plot will be fully fenced with a parking area and access to the plot will be through a motorized sliding door and a pedestrian door.. . Garden area on both sides of the house..

Property Details

  • Property ID :
  • Property Type :
  • Price :
  • Property Status :
  • Bedrooms :
  • Bathrooms :
  • Property Size :
  • Plot Size :
  • AM-11500
  • Detached Villa
  • €595,000
  • For Sale
  • 3
  • 2
  • 149.00m²
  • 800.00

Location

Alicante Spain

Similar Properties

AM-11500
For Sale
€595,000
Detached Villa

Alicante, Spain

  • Beds: 3
  • Baths: 2
  • 149.00 m²
AM-11500
For Sale
€595,000
Detached Villa

Alicante, Spain

  • Beds: 3
  • Baths: 2
  • 149.00 m²
AM-11500
For Sale
€595,000
Detached Villa

Alicante, Spain

  • Beds: 3
  • Baths: 2
  • 149.00 m²
AM-11500
For Sale
€595,000
Detached Villa

Alicante, Spain

  • Beds: 3
  • Baths: 2
  • 149.00 m²

Listed By

Viva Costa International

+34 656 32 91 34

info@vivacosta.es

View My Listing

Customise your search

Locations in Spain :

Property :

MARKETED BY

Viva Costa International

More properties from this agent

Featured Properties

RSP-N6257-7515
Featured
For Sale
€320,000

RSP-N6257-7515

Categories Property

Recently Added

About My Casa Away

We are committed to providing the best resources for finding property for sale in Spain that suits your unique requirements to perfection. Try our Smart Search and Property Matching Tools to get started.

Follow us

© 2022 My Casa Away. Terms of Use & Privacy Policy & Cookies Policy